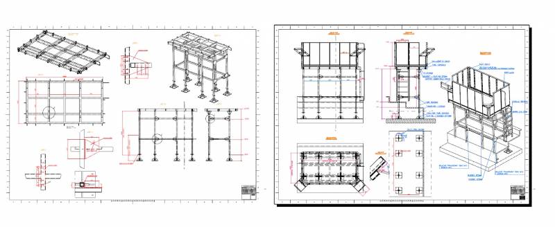
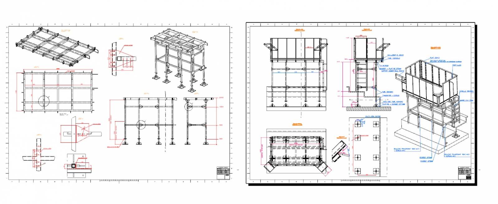
PLATEFORME OLYMPIQUE LYONNAIS 600kg/m2 AU GROUPAMA STADIUM

Lyon Métal, situé en région Lyonnaise et spécialiste de la conception et la fabrication ainsi que l’installation d'ouvrage métallique sur mesure et petit série .

le but étant de crée une plateforme surélevé pour OLYMPIQUE LYONNAIS situé dans la tribune sud du groupama stadium  à decines répondant au contrainte demandé: 600 kg/m² pour la plateforme et 170 kg/m pour les gardes corps  .

notre prestation :
Conception et étude et réalisation des plans excursion en interne 
réalisation d'une note de calcul 
fabrication a l'atelier de saint bonnet de mure 
galvanisation par bain 
installation au groupama staduim .

N'hésitez pas à nous contacter au 04 78 04 16 87 ,nous serons heureux de vous répondre.
Vous pouvez également nous joindre par mail : contact@lyonmetal.fr
 

 

Nous écrire
Les champs indiqués par un astérisque (*) sont obligatoires
Box de stockage Groupama stadium garde corps industriel vicat Vénissieux inauguration la cornue b&m studio lyon 69002
Une question ?